115A
115A is a landmark residential development that combines timeless classical architecture with the finest modern living standards. Located in one of New Cairo's most prestigious addresses, the project offers an exclusive collection of duplex and typical floor apartments, each crafted with exceptional attention to detail and quality.
The project is strategically positioned with easy access to key landmarks, major roads, international schools, medical centers, and premier retail destinations — offering residents a seamless blend of luxury, comfort, and connectivity.
The project is strategically positioned with easy access to key landmarks, major roads, international schools, medical centers, and premier retail destinations — offering residents a seamless blend of luxury, comfort, and connectivity.
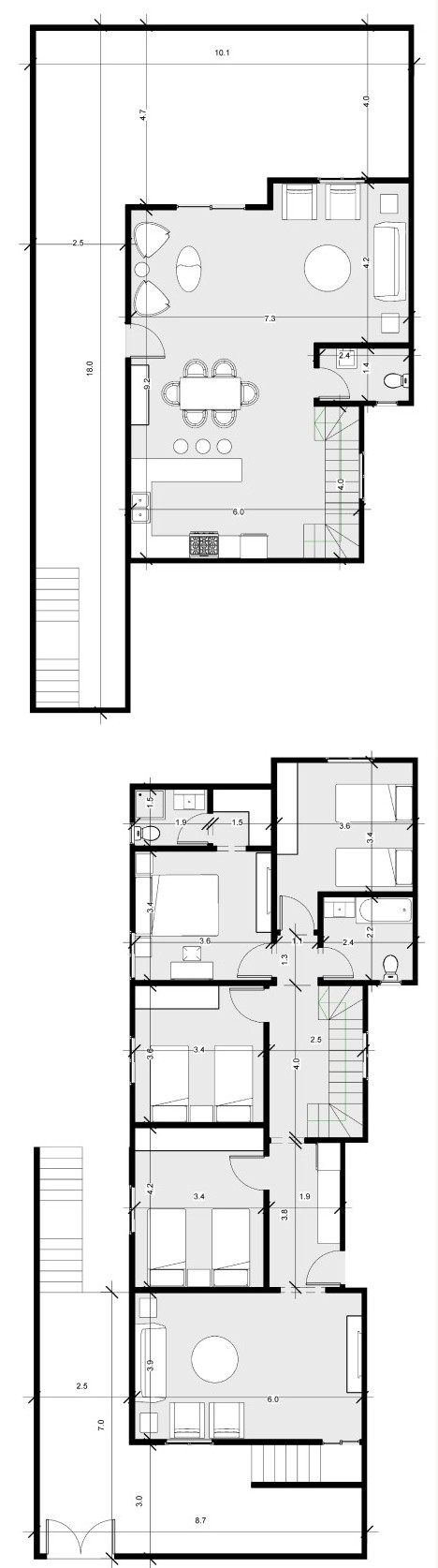
Duplex A - 270m2
| 7.. × 3.9 | Living |
| 1.9 × 3.8 | Coffee Corner |
| 3.4 × 4.2 | 1 Bedroom |
| 3.4 × 3.6 | 2 Bedroom |
| 3.4 × 3.6 | Master Bedroom |
| 1.0 × 1.0 | Dressing |
| 1.0 × 1.9 | Master Bedroom Bath |
| 2.4 × 2.2 | Main Bath Room |
| 3.4 × 3.6 | 3 Bedroom |
| 2.8 × 7.. | Kitchen |
| 2.4 × 1.4 | Guest Bathroom |
| 7.3 × 7.. | Reception |
+ Garden (120m2)
Typical (A) - 188m2
| 7.3 × 5.4 | Reception |
| 3.7 × 1.0 | Terrace |
| 2.3 × 1.1 | Guest Bathroom |
| 3.4 × 2.9 | Kitchen |
| 3.4 × 3.6 | 1 Bed Room |
| 4.. × 2.5 | Living |
| 2.4 × 2.2 | Bathroom |
| 3.6 × 3.4 | 2 Bed Room |
| 3.8 × 3.6 | Master Bedroom |
| 1.8 × 1.6 | Dressing |
| 1.9 × 1.8 | Master Bathroom |